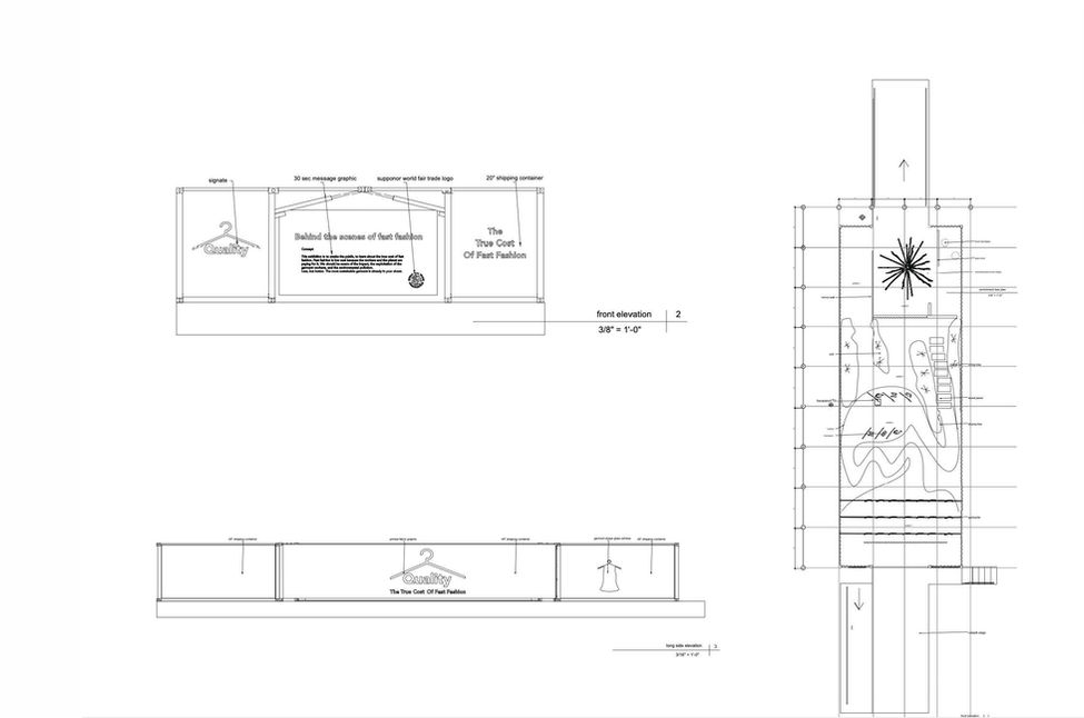
Exhibition Design | Quilty | Los Angeles
- Spatial Experience Strategy - Material/Color Strategy - 3D Modeling - Twinmotion Rendering - CAD Floor Plans
Ever snagged a fashion deal that seemed too good to be true? Behind those irresistible prices lies a tale of hidden compromises. This exhibit delves into the unseen costs of fast fashion, from labor exploitation to environmental harm. We invite you to explore the stories behind the price tags and consider the impact of your choices. By adopting the 'Less, but better' approach, we can collectively shift towards more ethical and sustainable fashion practices. Discover the true cost of keeping up with trends and how mindful consumption can pave the way for a better future. This narrative forms the core of our pop-up exhibition, which seeks to illuminate the obscured costs of fast fashion.















